Всього: 783,355.82
Всього: 783,355.82

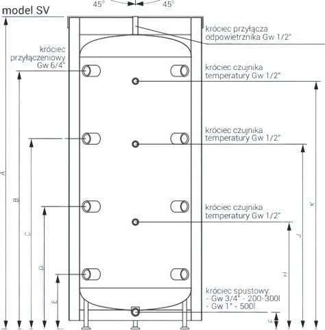
Kospel SV-200.1 / KOSPEL / БУФЕРНА ЄМНІСТЬ / НЕЕМАЛЬОВАНА, ІЗОЛЬОВАНА БЕЗ ЗМІЙНИКА /

24,112.02

В наявності

12 місяців гарантії
Артикул: ID produktu:13983557 Категорія:

Опис

Kospel SV-200.1 – Буферна ємність для ефективного збору енергії Kospel SV-200.1 – це сучасна буферна ємність, призначена для ефективного збору теплової енергії від різних джерел, наприклад котлів.Завдяки інноваційній конструкції він функціонує як розподільник, гідравлічний сепаратор і контур опалення, що робить його ідеальним рішенням для будинків і будівель, які потребують ефективного управління теплом.Використання в системах опалення – ідеально підходить для котлів центрального опалення.Ця буферна ємність є відмінним вибором для систем опалення на основі котлів центрального опалення.Завдяки своїй конструкції Kospel SV-200.1 забезпечує стабільне та ефективне управління теплом, що перетворюється на комфорт використання та економію енергії.Висока місткість і ефективність – 210 літрів енергії Бак Kospel SV-200.1 об’ємом 210 літрів ефективно збирає теплову енергію, що дозволяє її подальше використання в системі опалення.Ця потужність робить його ідеальним рішенням для великих будинків і будівель, де потреба в теплі є вищою.Нерозбірний корпус і товщина ізоляції 65 мм Корпус бака Kospel SV-200.1 нерозбірний, що підвищує його довговічність і надійність у використанні.Крім того, товщина ізоляції 65 мм забезпечує високу енергоефективність, мінімізуючи втрати тепла та підвищуючи комфорт використання.Розміри бака – діаметр і висота Розміри бака Kospel SV-200.1 адаптовані до потреб користувачів.Діаметр становить 595 мм, а висота – 1616 мм, що дозволяє легко встановлювати резервуар в різних приміщеннях.Технічні характеристики Kospel SV-200.1 – основні параметри продукту Ємність: 210 л Діаметр бункера: 595 мм Висота бункера: 1616 мм Товщина ізоляції: 65 мм Можливість використання обігрівача: 6/4” Корпус: нерозбірний Вага виробу з упаковкою: 60 кг Код виробника: SV-200.1.PL Energy клас ефективності: B Класи енергоефективності діапазону: A+++ – G Орієнтація: вертикальна Додаткові розміри: A: 1616 мм B: 1322 мм C: 970 мм D: 618 мм E: 266 мм F: 125 мм H: 554 мм J: 911 мм K: 1239 мм Замовте зараз, щоб насолодитися найкращою продуктивністю!Ідеально підходить для ваших потреб – доступний сьогодні в Apricot!